Komfortowe 2-pokojowe mieszkanie w kamienicy na Mokotowie!! Po remoncie instalacji z 2 piwnicami i niestandardową wysokością pomieszczeń - 2,79m!
Mam przyjemność zaprezentować Państwu funkcjonalne i wyjątkowo jasne 2-pokojowe mieszkanie o powierzchni 46 m², położone przy ul. Chełmskiej - w jednej z najbardziej pożądanych lokalizacji warszawskiego Mokotowa.
Lokal znajduje się na 2. piętrze kamienicy z 1954 roku. Mieszkanie jest jednostronne, z południową ekspozycją, dzięki czemu przez cały dzień jest naturalnie doświetlone i przytulne.
Jednym z kluczowych atutów jest ponadstandardowa wysokość pomieszczeń - 2,79 m, która nadaje wnętrzom przestrzeni, lekkości i możliwości aranżacyjnych, również w stylu loftowym.
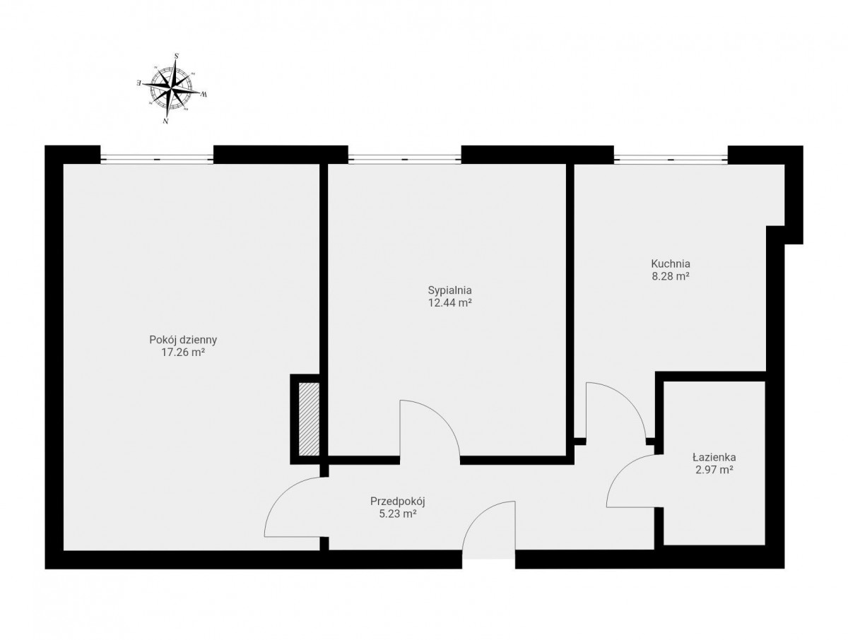
Układ pomieszczeń:
- jasny salon z drewnianą podłogą i miejscem na jadalnię
- wygodna sypialnia z dużą ilością szaf
- oddzielna, ustawna kuchnia - idealna do własnej aranżacji
- łazienka z wanną
- funkcjonalny przedpokój
Atuty nieruchomości:
- wysokie sufity - 2,79 m
- dwie piwnice przynależne do mieszkania - duża przestrzeń na przechowywanie
- mieszkanie po wymianie instalacji elektrycznej i centralnego ogrzewania
- świetna lokalizacja - tuż obok nowa linia tramwajowa
Idealne zarówno do zamieszkania, jak również jako inwestycja pod wynajem.
W bezpośrednim sąsiedztwie znajdują się liczne sklepy, punkty usługowe, restauracje, szkoły, przedszkola oraz tereny zielone: Park Sielecki, Promenada, Morskie Oko czy pobliskie Łazienki Królewskie.
Doskonała komunikacja:
- przystanek tramwajowy - ok. 100 m
- przystanek autobusowy - ok. 200 m
- Park Sielecki - 300 m
- Park Promenada - 400 m
- Park Morskie Oko - 800 m
- Łazienki Królewskie - 750 m
- Sadyba Best Mall - ok. 2,5 km
- wodny park Warszawianka - ok. 1,5 km
Szybki dojazd do centrum- ok 12 min samochodem i ok 18 min na Lotnisko Chopina
Bliskość Dolinki Służewieckiej zapewnia wygodny wyjazd w różne części miasta jak i poza jego granice.
Zapraszam do kontaktu i obejrzenia mieszkania na żywo - to doskonała propozycja dla osób ceniących świetną lokalizację, wygodny układ i duży potencjał aranżacyjny.
Zdjęcie łazienki przedstawia wizualizację.
Aspekt prawny:
Odrębna własność z Księgą Wieczystą, co umożliwia posiłkowanie się kredytem hipotecznym. Stan prawny gruntów uregulowany.
Bezpłatna konsultacja z niezależnym ekspertem kredytowym - sprawdzenie zdolności kredytowej, dostępność ofert ze wszystkich banków.
Jestem wyłącznym agentem tej nieruchomości.
Serdecznie zapraszam na prezentację oraz do kontaktu telefonicznego.
Jestem do Państwa dyspozycji 7 dni w tygodniu w godzinach 9 - 21.
Ekspert ds. Nieruchomości
ANNA DĄBROWSKA
Tel: 698 163 790
Proper Partners
JEŻELI TWÓJ ZAKUP WIĄŻE SIĘ ZE SPRZEDAŻĄ INNEJ NIERUCHOMOŚCI DAJ ZNAĆ, CHĘTNIE PRZEPROWADZĘ CIĘ PRZEZ TEN PROCES.
Ogłoszenie nie stanowi oferty w rozumieniu przepisów kodeksu cywilnego.