Kwiejce Nowe,
2 000 000,00 PLN
Działka (Inwestycyjna) na sprzedaż , 96 689 m2
20,68 PLN /m2
Powierzchnia
96 689 m2

Dane nieruchomości:

Numer oferty: 34964550234
Powierzchnia: 96 689 m2
Cena za m2: 20,68 PLN
Cena: 2 000 000,00 PLN

Opis nieruchomości:

Jeśli szukasz pomysłu na inwestycje ta oferta może być dla Ciebie.

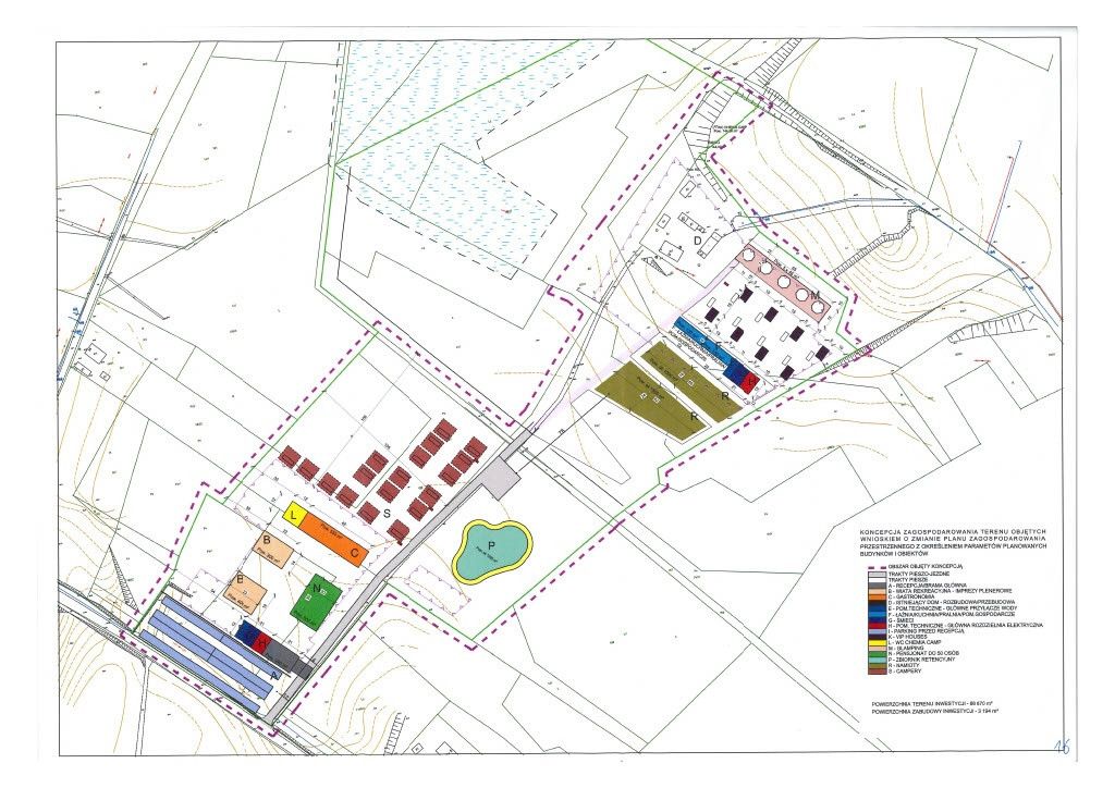
Mam do zaproponowania działkę inwestycyjną z gotowym projektem zagospodarowania pod kemping wraz z pensjonatem, domkami i glampingiem.

Najważniejsze cechy:

  • świetna lokalizacja - w pobliżu trzy duże miasta, Gorzów Wielkopolski, Poznań i Piła
  • działka zlokalizowana na ternach częściowo zalesionych w pięknym otoczeniu natury,
  • gotowy projekt zagospodarowania terenu 
  • bardzo dobry dojazd
Jeżeli jesteś zainteresowany zapraszam serdecznie do kontaktu po więcej szczegółów.

Daniel Ćwikowski

Skontaktuj się z agentem :
Biuro INVESTOR

Telefon : 22 622 70 22

biuro@investor.waw.pl


Lokalizacja: