Graby,
119 990,00 PLN
Działka (Budowlana) na sprzedaż , 1 203 m2
99,74 PLN /m2
Powierzchnia
1 203 m2

Dane nieruchomości:

Numer oferty: 34964542564
Powierzchnia: 1 203 m2
Cena za m2: 99,74 PLN
Cena: 119 990,00 PLN

Opis nieruchomości:

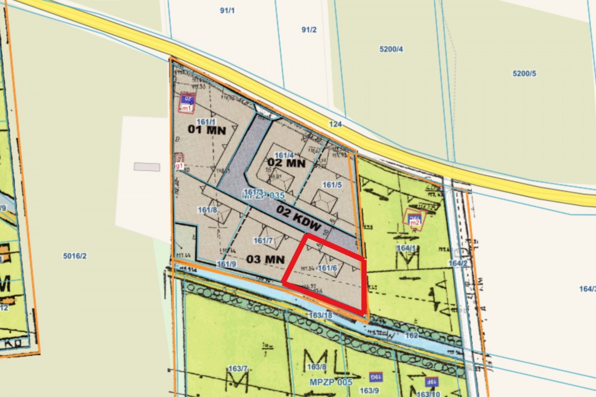
Na sprzedaż działka budowlana o powierzchni 1203 m2 w miejscowości Graby, gmina Czerniejewo. 



Działka objęta jest Miejscowym Planem Zagospodarowania Przestrzennego pod zabudowę mieszkaniową jednorodzinną wolnostojącą. 

Graby to spokojna wieś oddalona:


  • zaledwie kilka minut jazdy autem od Czerniejewa (4 km)

  • 20 min jazdy autem do Gniezna, Wrześni i Kostrzyna.

  • ok. 8 km do drogi krajowej nr 92



Nieruchomość oddalona jest zaledwie ok 1 km od przystanku autobusowego, z którego kursują połączenia do Czerniejewa, gdzie znajdują się:



  • sklepy spożywcze (Dino, Sklepy ABC, Biedronka)

  • przedszkole

  • apteki

  • tereny rekreacyjno - sportowe (hala widowiskowo - sportowa, stadion miejski, park) 

  • restauracje

  • poczta

  • ośrodek zdrowia 


Najbliższy zespół Szkół znajduję się w Nekli (9 km) 



Podstawowe parametry:
- wymiar działki (trapez): ok. 30m x 34m x 30m x 50m
- niezabudowana, częściowo porośnięta kilku letnimi roślinami
- media: prąd (projekt budowy przyłącza energetycznego ENEA Operator), pozostałe w drodze głównej 
- w bezpośrednim sąsiedztwie znajdują się domy jednorodzinne, pola, łąki oraz lasy


Cena: 119 990 zł (cena zawiera udziały w drodze dojazdowej 161/2 i 161/3)

Skontaktuj się z agentem :
Biuro INVESTOR

Telefon : 22 622 70 22

biuro@investor.waw.pl


Lokalizacja: