Zabrze, Marszałka Józefa Piłsudskiego
769 000,00 PLN
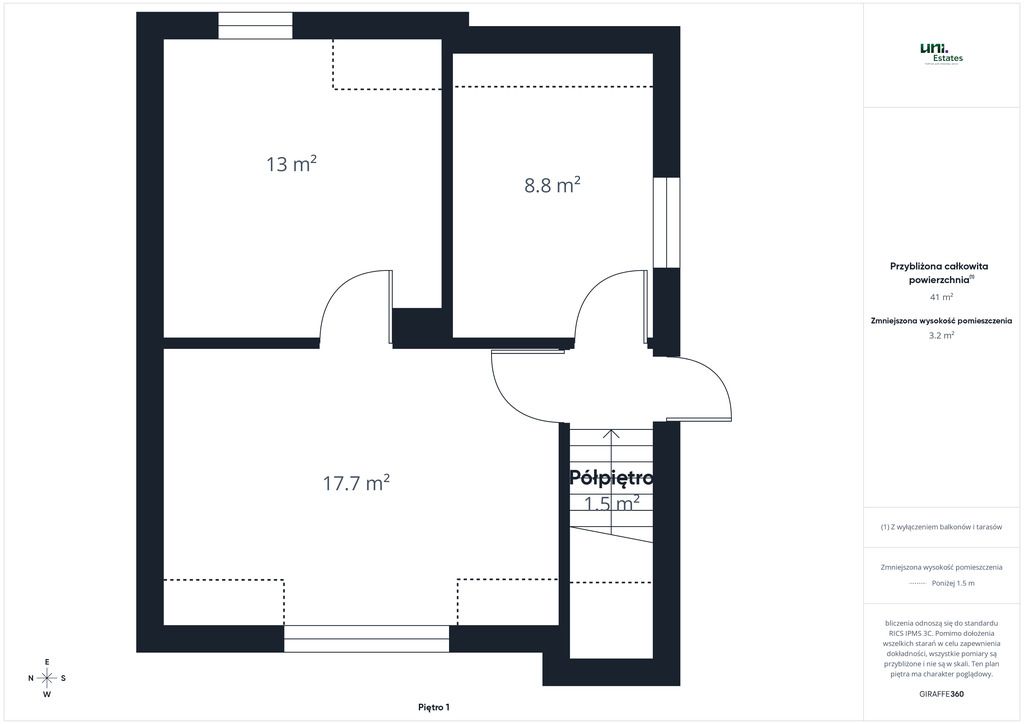
Dom na sprzedaż , 140 m2
5 492,86 PLN /m2
Powierzchnia
140 m2
Liczba pokoi
5
Rok budowy
1930

Dane nieruchomości:

Numer oferty: 34964543081
Powierzchnia: 140 m2
Powierzchnia działki: 443 m2
Liczba pokoi: 5
Pięter : 1
Rok budowy: 1930
Cena za m2: 5 492,86 PLN
Cena: 769 000,00 PLN

Opis nieruchomości:

Na sprzedaż szeregowy dom o powierzchni użytkowej ok. 113 m², wybudowany w 1930/1940 roku, położony na działce o łącznej powierzchni 0,0443 ha, przy ul. Piłsudskiego 53 w Zabrzu. Nieruchomość posiada duże podwórko i oferuje ogromny potencjał aranżacyjny, idealny dla osób poszukujących domu do własnej adaptacji lub pod inwestycję.
Dom składa się z parteru i pierwszego piętra z możliwością adaptacji strychu na kolejne pokoje.

Link do Spaceru Wirtualnego :

https://tour.giraffe360.com/302a630b3b3a46d695ff32369be2d92a/

Układ i powierzchnia :
  • Powierzchnia użytkowa domu: ok. 113 m²
  • Liczba pokoi: 5 możliwość adaptacji kolejnych 2
  • Działka: 0,0443 ha (443 m²)
  • Duże, funkcjonalne ogród

Stan techniczny :
  • Dom do remontu
  • Nieruchomość do własnej aranżacji
  • Duży potencjał modernizacyjny
  • Dach: dachówka
  • Okna: częściowo wymienione, częściowo do wymiany
  • Możliwość adaptacji strychu na dodatkowe pokoje

Ogrzewanie :
  • Ogrzewanie węglowe (dotychczasowe)
  • Możliwość wykonania ogrzewania gazowego lub innego systemu według własnego uznania (Warunki )

Media :
  • Woda – doprowadzona do domu
  • Gaz – doprowadzony do domu
  • Prąd/Siła – doprowadzony do domu w Mieszkaniu
  • Kanalizacja – miejska

Lokalizacja :
Dom znajduje się przy ul. Piłsudskiego 53 w Zabrzu, w jednej z dobrze skomunikowanych części miasta, z szybkim dostępem do centrum i głównych tras wyjazdowych. W najbliższym otoczeniu znajdują się szkoły, przedszkola, sklepy i punkty usługowe, co sprawia, że codzienne życie jest komfortowe i wygodne.
Okolica jest również przyjazna dla rodzin i osób ceniących aktywny wypoczynek – w pobliżu znajdują się parki, tereny zielone oraz miejsca rekreacyjne, idealne na spacery, jogging czy zabawy dzieci. Dzięki temu miejsce łączy spokój dzielnicy z łatwym dostępem do miejskiej infrastruktury.
To idealna lokalizacja dla osób, które chcą połączyć komfort mieszkania z potencjałem inwestycyjnym domu i cieszyć się codziennym życiem w dobrze zorganizowanej, przyjaznej okolicy.
  • Zabrze – ul. Piłsudskiego 53
  • Dobra komunikacja z centrum miasta
  • W pobliżu infrastruktura miejska

Finanse :
  • Cena ofertowa: 769 000 zł do negocjacji

Stan prawny :
  • Pełna własność

Informacje dodatkowe
  • Gotowy projekt budynku – możliwość realizacji bez etapu projektowego
  • Idealna propozycja dla osób szukających domu z potencjałem
  • Możliwość stworzenia komfortowego domu jednorodzinnego/dwurodzinnego lub inwestycji
  • Atrakcyjna lokalizacja w Zabrzu


STAN PRAWNY :
  • jeden właściciel
  • możliwość szybkiej transakcji
  • umowa na wyłączność

Kontakt: 8:00–21:00
W godzinach wieczornych proszę o wiadomość SMS – z pewnością oddzwonię lub odpiszę najszybciej, jak to będzie możliwe.
Jeśli nie odbiorę telefonu, skontaktuję się z Państwem w najbliższym możliwym czasie.

Zastanawiasz się nad sprzedaż swojej nieruchomości ? Skontaktuj się ze mną a pomogę osiągnąć Tobie satysfakcjonujący wynik finansowy w sprzedaży.

Przedstawione ogłoszenie ma charakter wyłącznie informacyjny i nie stanowi oferty w rozumieniu art. 66 § 1 Kodeksu cywilnego. Biuro Nieruchomości dokłada starań, aby treść ogłoszeń była rzetelna i aktualna, jednak nie ponosi odpowiedzialności za ewentualne nieścisłości, błędy lub nieaktualność ogłoszenia.

For sale is a terraced house with a usable area of approximately 113 m² , built in 1930 , situated on a plot of 0.0443 ha, at 53 Piłsudskiego Street in Zabrze. The property features a large yard and offers enormous design potential, ideal for those seeking a home for personal adaptation or investment.
The house consists of a ground floor and a first floor with the possibility of adapting the attic into additional rooms.

Link to the Virtual Tour:

https://tour.giraffe360.com/302a630b3b3a46d695ff32369be2d92a/

Layout and surface:
  • Usable area of the house: approx. 113 m²
  • Number of rooms: 5, possibility of adapting another 2
  • Plot: 0.0443 ha ( 443 m² )
  • Large, functional yard

Technical condition:
  • House to be renovated
  • Property for your own arrangement
  • Great modernization potential around 1930
  • Roof: tiles
  • Windows: partially replaced, partially to be replaced
  • Possibility of adapting the attic into additional rooms

Heating :
  • Coal heating (current)
  • Possibility of installing gas heating or another system at your discretion

Media:
  • Water – brought to the house
  • Gas – brought to the house
  • Electricity – brought to the house
  • Sewerage - city

Location :
The house is located at 53 Piłsudskiego Street in Zabrze, in one of the city's well-connected areas, with quick access to the city center and major exit routes. Schools, kindergartens, shops, and services are located nearby, ensuring a comfortable and convenient daily life.
The area is also family-friendly and suitable for those who value active leisure – nearby are parks, green spaces, and recreational areas, ideal for walking, jogging, or children's play. This location combines the tranquility of a peaceful neighborhood with easy access to city amenities.
This is an ideal location for people who want to combine the comfort of living with the investment potential of a home and enjoy everyday life in a well-organized, friendly neighborhood.
  • Zabrze – 53 Piłsudskiego Street
  • Good communication with the city center
  • Urban infrastructure nearby

Finance:
  • Offer price: PLN 769,000 negotiable

Legal status:
  • Full ownership

Additional information
  • Ready-made building design – can be implemented without the design stage
  • An ideal proposition for those looking for a house with potential
  • The possibility of creating a comfortable single-family home or investment
  • Attractive location in Zabrze


LEGAL STATUS:
  • one owner
  • possibility of quick transaction
  • exclusive contract

Contact : 8:00–21:00
In the evenings, please send me a text message - I will certainly call you back or reply as soon as possible.
If I do not answer the phone, I will contact you as soon as possible.

Are you considering selling your property? Contact me and I will help you achieve a satisfactory financial result.

This announcement is for informational purposes only and does not constitute an offer within the meaning of Article 66 § 1 of the Civil Code. The Real Estate Agency strives to ensure that the content of the announcements is accurate and up-to-date, but is not responsible for any inaccuracies, errors, or out-of-dateness of the announcement.





Skontaktuj się z agentem :
Biuro INVESTOR

Telefon : 22 622 70 22

biuro@investor.waw.pl


Lokalizacja: