Gdańsk Wrzeszcz, Jana Sobieskiego
2 599 000,00 PLN
Dom (Segment skrajny) na sprzedaż , 222 m2
11 707,21 PLN /m2
Powierzchnia
222 m2
Liczba pokoi
5
Rok budowy
1920

Dane nieruchomości:

Numer oferty: 34964549242
Powierzchnia: 222 m2
Powierzchnia działki: 400 m2
Liczba pokoi: 5
Pięter : 2
Rok budowy: 1920
Ogrzewanie: CO miejskie
Jasna kuchnia: Tak
Cena za m2: 11 707,21 PLN
Cena: 2 599 000,00 PLN

Opis nieruchomości:

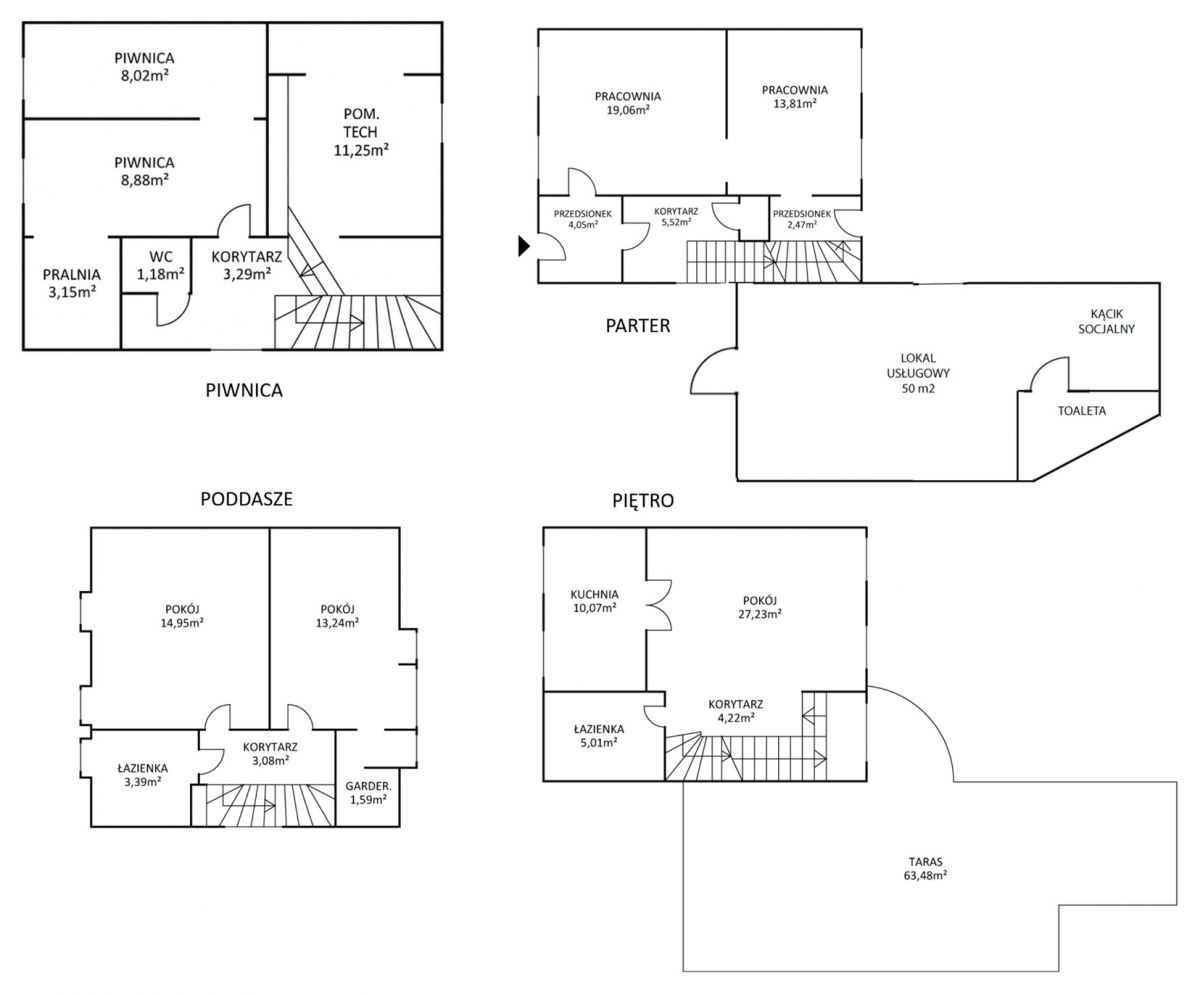
Wyjątkowa oferta sprzedaży domu w zabudowie szeregowej, która łączy w sobie urok dawnej architektury z funkcjonalnością, jakiej szukają współcześni inwestorzy oraz rodziny. Dom o łącznej powierzchni 222 m² oferuje aż cztery kondygnacje mieszkalne oraz niezależny lokal usługowy, co czyni go idealnym miejscem do życia, prowadzenia biznesu lub czerpania zysków z wynajmu.
Nieruchomość znajduje się w zielonej enklawie, gdzie z okien roztacza się widok na starodrzew i ogródki działkowe, a jednocześnie tętniące życiem centrum Wrzeszcza jest na wyciągnięcie ręki. To rzadka okazja, by stać się właścicielem domu z dużym ogrodem w tak strategicznej lokalizacji Gdańska.

Pomieszczenia
Poziom 0 (przyziemie):
- Trzy pomieszczenia z oknami
- Pralnia
- Łazienka
Poziom +1 (niezależne mieszkanie)
- Salon z aneksem kuchennym
- Sypialnia
- Łazienka
Poziom +2 (główna strefa dzienna)
- Salon
- Kuchnia
- Łazienka
- Taras
Poziom +3 (poddasze użytkowe):
- Dwie sypialnie
- Garderoba
- Antresola
- Łazienka
Lokal usługowy:
- Sala główna z oddzielnym wejściem
- Łazienka

Lokalizacja
Wrzeszcz Górny to dzielnica uznawana za kulturalne i akademickie serce Gdańska. Ulica Sobieskiego zapewnia szybki dostęp do głównych arterii komunikacyjnych, zachowując przy tym kameralny charakter.
- Obszar Wrzeszcza Górnego podlega stałej rewitalizacji. Projekty modernizacji okolicznych tras rowerowych jeszcze bardziej połączą tę dzielnicę z pasem nadmorskim i Trójmiejskim Parkiem Krajobrazowym.
- Nowa trasa tramwajowa wzdłuż ulicy Sobieskiego połączy istniejącą infrastrukturę tramwajową w dzielnicy Piecki - Migowo z Wrzeszczem na wysokości al. Grunwaldzkiej. Wzdłuż torów tramwajowych powstanie również trasa rowerowa i chodniki.
- Przystanki autobusowe znajdują się niemal pod samym domem. W bliskim sąsiedztwie operują liczne placówki edukacyjne, w tym Politechnika Gdańska.
- Kilka minut spacerem dzieli Cię od Parku w Królewskiej Dolinie, historycznego terenu spacerowego, niegdyś goszczącego króla Jana III Sobieskiego.

Zalety
- Duży potencjał inwestycyjny. Dom jest obecnie podzielony na 3 niezależne, wynajmowane lokale oraz dodatkowy lokal usługowy, co generuje stały przychód.
- Duża możliwość aranżacji. Na przykład przyziemie można zaaranżować na mini-mieszkanie dla nastolatka lub urządzić w nim salę kinową dla rodziny.
- Ponad 400 m² prywatnej zieleni z owocowymi drzewami (jabłonie, czereśnie) i altaną.
- Ogromny taras z ponad 60-metrową przestrzenią wypoczynkową na poziomie głównego salonu.
- Ogrzewanie z sieci miejskiej, co jest rzadkością i dużym atutem w budownictwie z tego okresu.
- Podjazd z przodu budynku mieszczący dwa samochody.
- Dom jest zadbany, gotowy do zamieszkania lub dalszego wynajmu, z wymienionymi oknami PCV i dachem pokrytym dachówką.
- Możliwość odliczenia od podstawy opodatkowania 50% wydatków na roboty budowlane.

Skontaktuj się z agentem :
Biuro INVESTOR

Telefon : 22 622 70 22

biuro@investor.waw.pl


Lokalizacja: